Ландшафтный дизайн. планировка участка
от 7 000 руб в Ветке
Чертежи по Ландшафтному дизайну вашего участка ✅ для вас любые идеи по Ландшафтному дизайну
Заказать
от 7 000 руб
Дизайн-проект
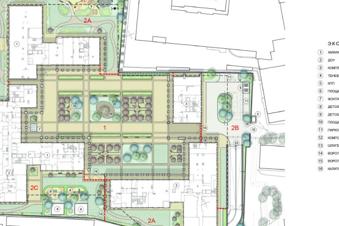
Разбивка участка по функциональным зонам (отдыха, игр, прогулок) отображается на Ген. плане
Срочность
делам все грамотно и быстро, предоставляем рекомендации, сможем сделать всю рабочку по ЛД
Гарантии
Нам уже доверилось более 200 человек для которых были разработаны уникальные логотипы
Выберите тариф на Ландшафтный дизайн
ЭКОНОМ
Что включено:
- Схема зонирования
- План благоустройства с покрытиями
- План освещения
- Количество правок 2 шт
- Срок выполнения 5 дней
7 000 руб
Заказать
